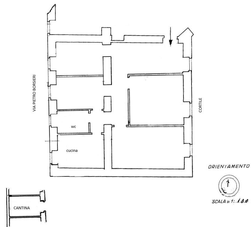
Quartiere Prati e più precisamente in Via Francesco De Sanctis, a pochi metri da Piazza Mazzini, all'interno di uno stabile d’epoca con servizio di ascensore, proponiamo la vendita di un luminoso appartamento con doppia esposizione sito al quinto piano di circa 150 mq commerciali. L'immobile è attualmente composto da ampio ingresso, corridoio cinque camere e un bagno. Completa la proprietà una cantina di pertinenza. L'immobile si presenta completamente da ristrutturare ma essendo composto principalmente da tramezzi si presta a molteplici soluzioni.
