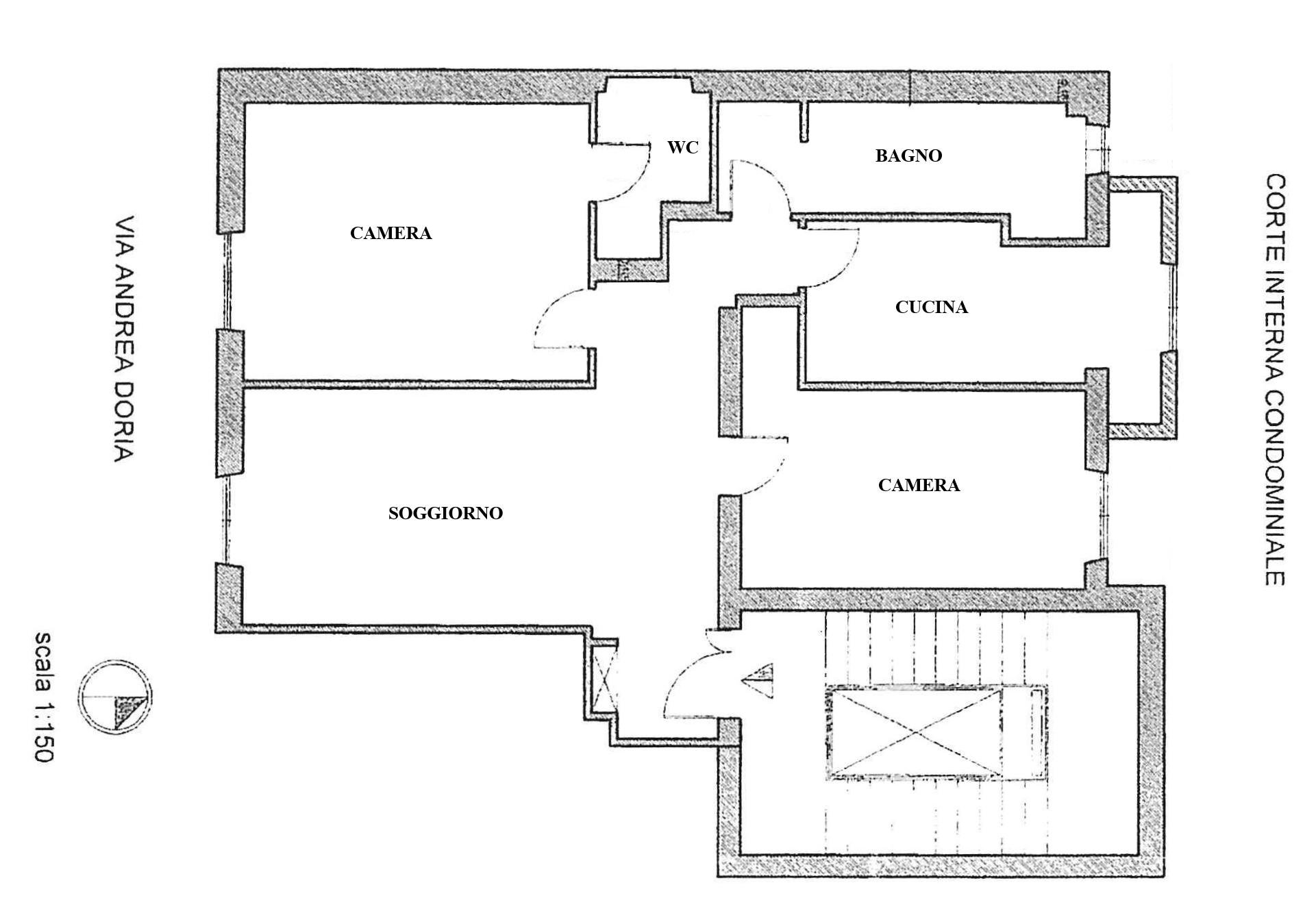
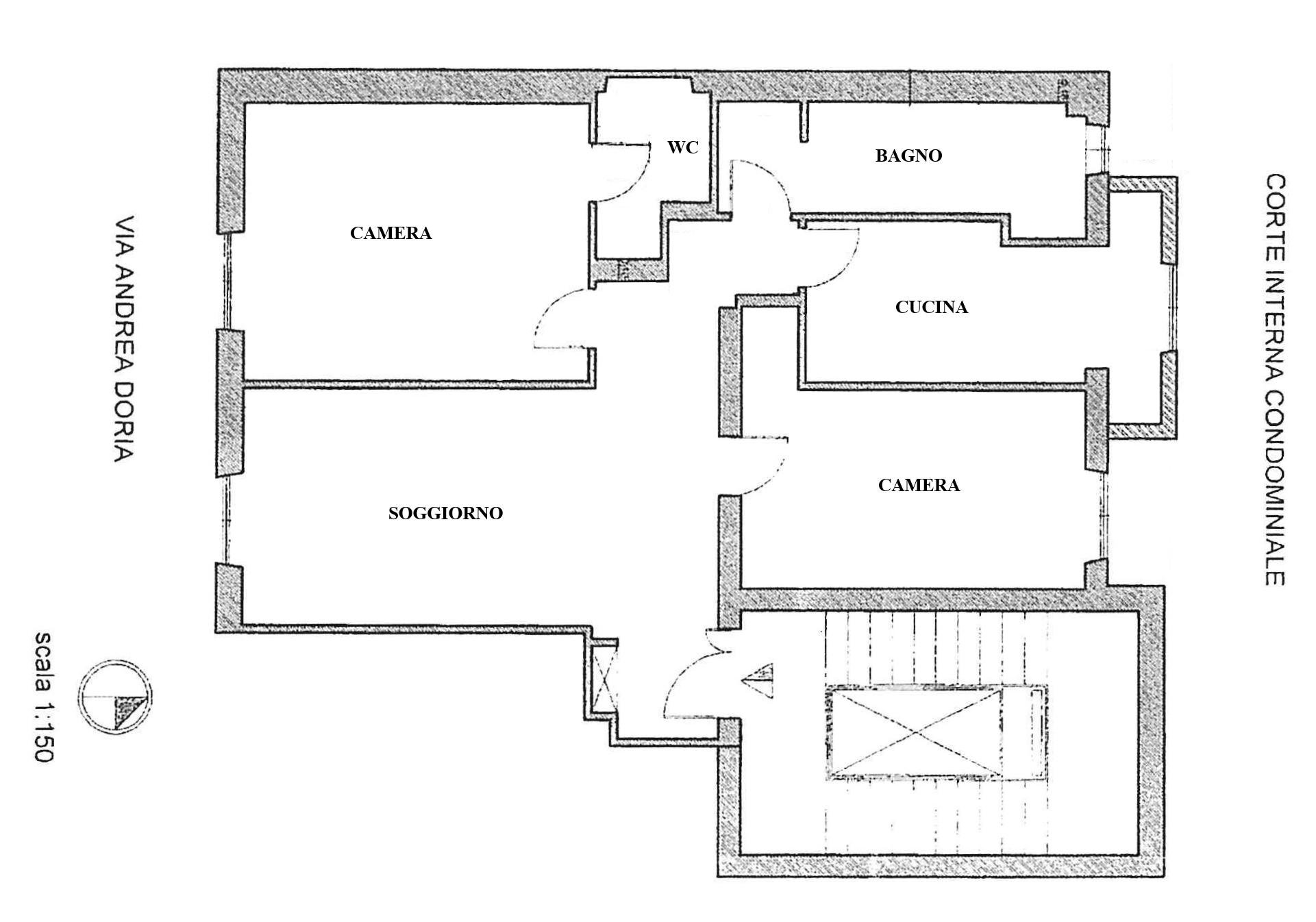
In zona Prati e più precisamente in Via Andrea Doria a pochi passi dalla metro Ottaviano, fronte mercato Trionfale, proponiamo la locazione di un appartamento di circa 90 mq posto al terzo piano in ottime condizioni composto da; ampio soggiorno, cucina, due camere da letto matrimoniali di cui una con bagno in suite e altro bagno. L'appartamento gode di un'ottima luminosità, dispone di vari armadi a muro , aria condizionata, riscaldamento autonomo, viene consegnato completamente arredato e completo di tutti gli elettrodomestici. Le spese condominiali ammontano a circa € 123,00 mensili. Viene richiesto un contratto transitorio di massimo 18 mesi . Libero da metà gennaio .NO ATTIVITA RICETTIVE O SIMILARI.
