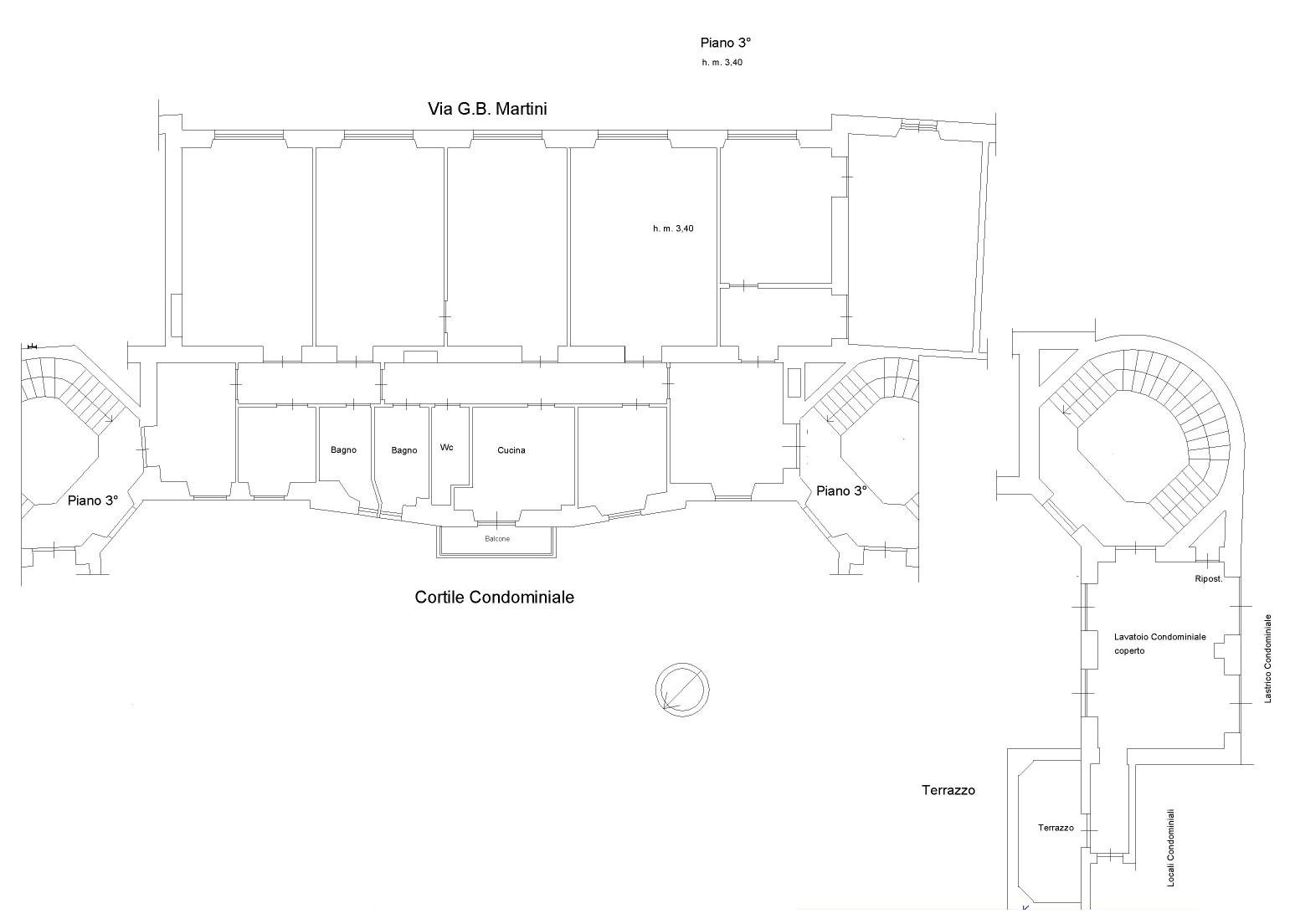
Piazza Verdi, a pochi passi da Villa Borghese e più precisamente in Via Giovanni Battista Martini, proponiamo all’interno di un elegante stabile d’epoca con servizio di portineria e parcheggio condominiale, la vendita di un luminoso appartamento con doppi ingressi sito al terzo piano di circa 270 mq composto da; due ampi ingressi, salone, 5 camere, due camere di servizio, cucina abitabile, tripli servizi, balcone e cantina. L’appartamento gode di una doppia esposizione sud/ovest e nord/est con ampi affacci sia su Via G.B. Martini che su un ampia corte condominiale. I doppi ingressi ed il fatto che l’immobile è composto per gran parte da tramezzature, si presta ad un frazionamento di due o più unità oltre che a molteplici soluzioni di ridistribuzione degli spazi interni.
