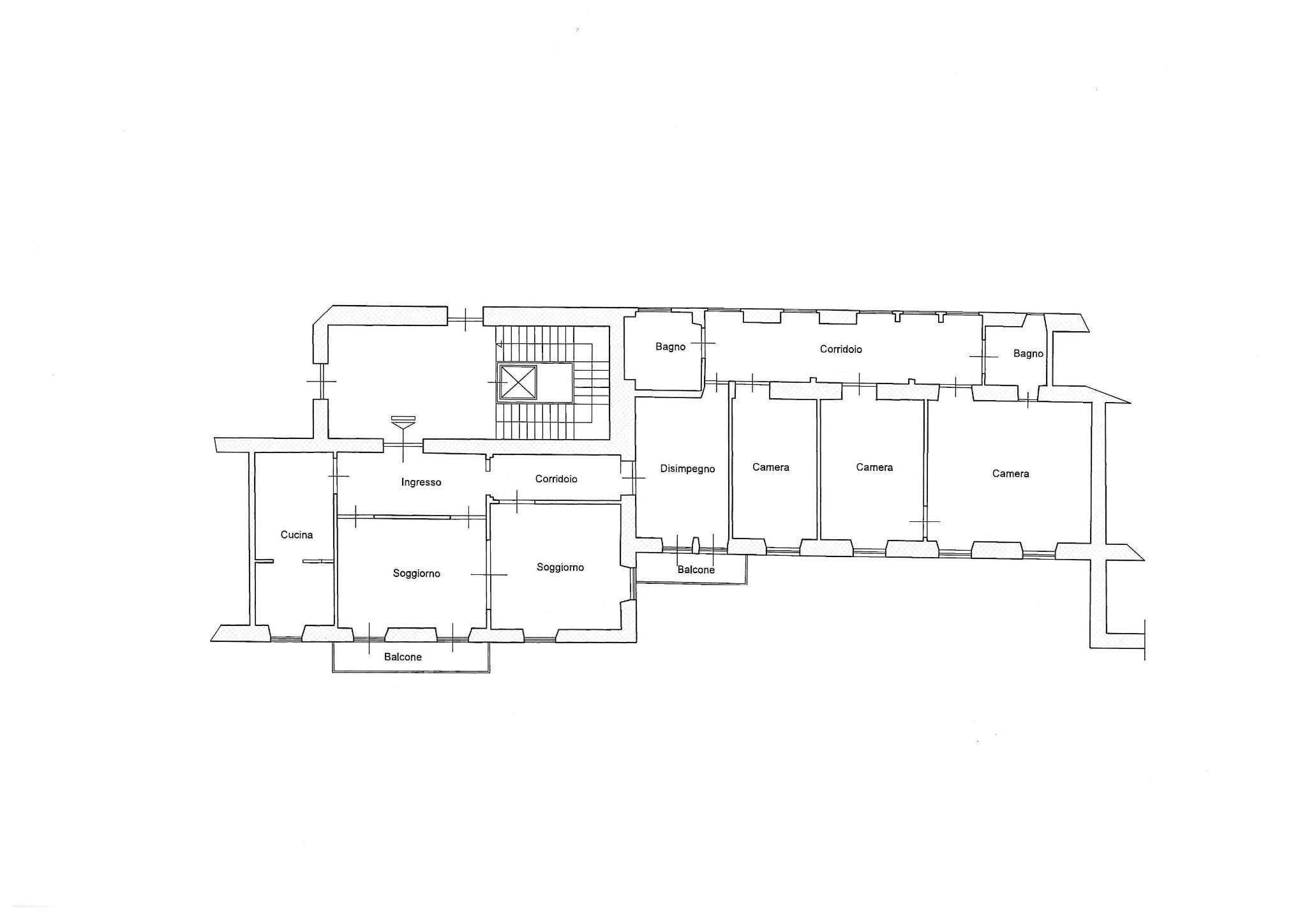
Piazza Verdi, nel cuore del quartiere Pinciano a pochi passi da Villa Borghese, e più precisamente in Via Claudio Monteverdi, proponiamo all’interno di un elegante palazzo d’epoca con servizio di portineria ed ascensore la vendita di un elegante appartamento di circa 210 mq sito al secondo piano catastale. L’immobile si presenta da ristrutturare ed offre grandi potenzialità grazie agli spazi generosi ed alla distribuzione razionale degli ambienti. La proprietà è composta da: ingresso, salone doppio con zona pranzo ed accesso a balcone, cucina abitabile, ampio disimpegno con accesso al secondo balcone, tre camere da letto di cui due matrimoniali e due bagni. Completa la proprietà una grande cantina asciutta con finestra, perfetta anche come spazio di servizio o per hobby. L'immobile gode di doppia esposizione, riscaldamento centralizzato, pavimenti d'epoca e parquet, soffitti di 3.70 metri; soluzione ideale per chi desidera una casa di grande rappresentanza nel cuore del Pinciano.
-optimized.jpg?v=1766513964)