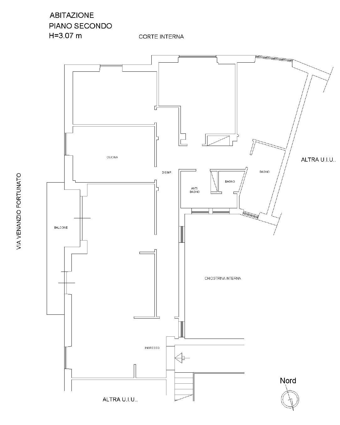
Balduina, e più precisamente in Via Venanzio Fortunato, all'interno di uno stabile con servizio di portineria proponiamo la vendita di un luminoso appartamento sito al secondo piano di circa 160 mq commerciali. L'immobile è composto da ampio ingresso, salone doppio con accesso ad un balcone vivibile, zona pranzo, tre camere da letto, due bagni e ripostiglio. Completa la proprietà una cantina di pertinenza. L'immobile si presenta completamente da ristrutturare ma essendo composto principalmente da tramezzi si presta a molteplici soluzioni.
