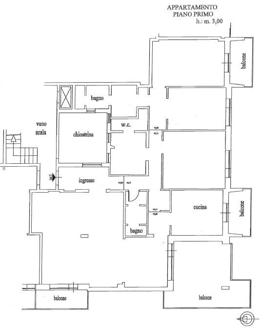
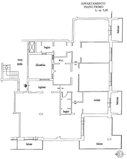
Nel cuore della Zona Mascagni, in una delle vie più eleganti e riservate del quartiere, proponiamo in vendita un ampio appartamento di circa 186 mq commerciali situato al primo piano rialzato di uno stabile signorile con servizio di portineria. Punto di forza della proprietà oltre al posto auto collegato all'appartamento tramite ascensore al piano è la grande zona giorno con accesso diretto a uno splendido terrazzo vivibile, ideale per pranzi all’aperto o momenti di relax, oltre a tre balconi che garantiscono ulteriori affacci esterni e grande ariosità agli ambienti. La distribuzione interna è ampia e funzionale: ingresso,salone doppio, cucina vivibile ,tre comode camere, camera di servizio con bagno interno, bagno padronale con vasca e doccia e terzo servizio con doccia. L’appartamento gode di esposizione sud-ovest, con affacci riservati e molto silenziosi, pur trovandosi a pochi passi da tutti i servizi del quartiere. L’immobile presenta rivestimenti di ottima qualità e infissi in gran parte sostituiti, sono tuttavia opinabili interventi di manutenzione. Completano la proprietà: • posto auto nel garage condominiale, collegato tramite ascensore direttamente al piano • cantina asciutta e areata di facile accesso.
