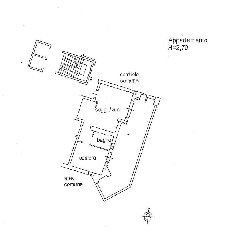
In posizione strategica, l’immobile si trova nelle vicinanze del parco Talenti, all’interno del complesso residenziale “Belvedere Le Ninfee”, in una zona dotata di molteplici esercizi commerciali, palestre e servizi, facilmente raggiungibile anche il GRA. L'appartamento di circa 70 mq è posto al piano terra ed ha un comodo spazio esterno, il design funzionale è adattato per sfruttare al meglio ogni angolo; composto da una spaziosa zona giorno con angolo cottura dotato di tutti gli elettrodomestici, un bagno, ed una camera da letto. L'impianto di riscaldamento a pavimento e l’impianto di climatizzazione canalizzato, sono entrambi alimentati da sonde geotermiche ad emissione zero, ogni ambiente è arricchito di comandi per regolare la temperatura a proprio piacimento. Infissi e avvolgibili di ultima generazione permetto un risparmio energetico ed una giusta coibentazione degli ambienti. Completano la proprietà una cantina ed un box chiuso di 15 mq. Il complesso residenziale è composto da quattro palazzine con classificazione energetica "A", è dotato di servizio di portineria per l'intera giornata e piscina ad uso esclusivo del complesso residenziale.
