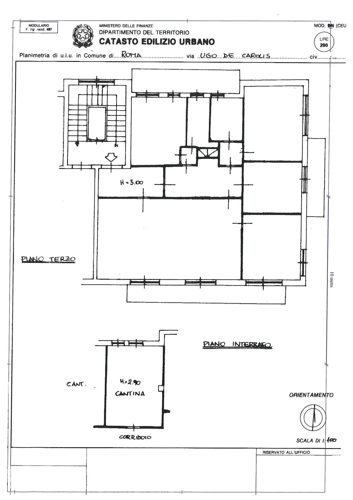
Tra Largo Damiano Chiesa e Largo Giorgio Maccagno, nel cuore del quartiere Balduina, e precisamente in Via Ugo de Carolis, proponiamo un appartamento di circa 150 mq, in buone condizioni e dotato di tutti i confort; si trova al terzo piano di un palazzo gradevole e riservato. L'ingresso dotato di un piccolo disimpegno conduce ad un salone doppio ben studiato per una giusta convivialità, finestre nuove in doppio vetro permettono di accedere ad un comodo balcone. Due camere da letto ed una cameretta, che può fungere anche da studio dotata di balconcino, ben integrate in una pianta quadrata permettono di vivere tutti gli ambienti nella loro completezza. Un bagno con vasca ed uno con doccia vicino alla zona notte, ed una cucina semi abitabile provvista di balcone completano la proprietà. L’immobile dispone anche di una cantina di proprietà esclusiva e della possibilità di parcheggiare nello spazio condominiale comune.
