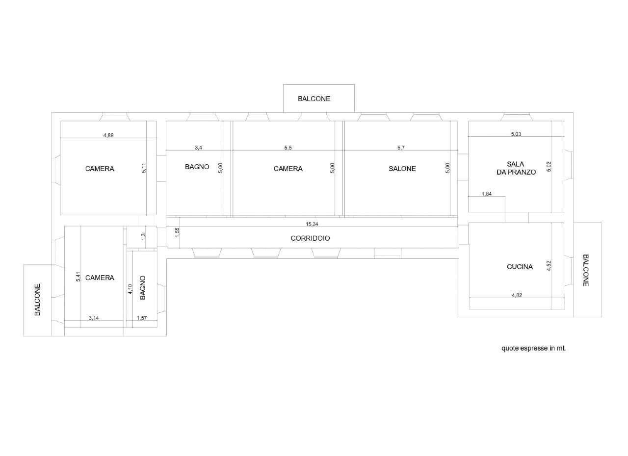
Nel contesto storico del quartiere Pinciano, a pochi passi da Villa Borghese, all'interno di uno splendido stabile d'epoca con ascensore ed ampia corte condominiale proponiamo la vendita di un appartamento ad uso abitativo attualmente locato. L’immobile è ubicato al primo piano e si compone di: ingresso, otto camere, disimpegno, doppi servizi e tre balconi. Grazie alla tripla esposizione su Via Guido d’Arezzo, Via N. Paganini e sul giardino condominiale l’appartamento si presenta estremamente luminoso. Gli infissi sono in legno, il riscaldamento è termoautonomo e gli ambienti sono climatizzati. Una funzionale ridistribuzione degli spazi interni consentirà di valorizzare al massimo le potenzialità abitative dell’immobile per renderlo una residenza unica e di pregio ubicata in una delle zone più esclusive di Roma. La proprietà comprende inoltre un ampia cantina con soffitti a volte di pertinenza al piano seminterrato.
