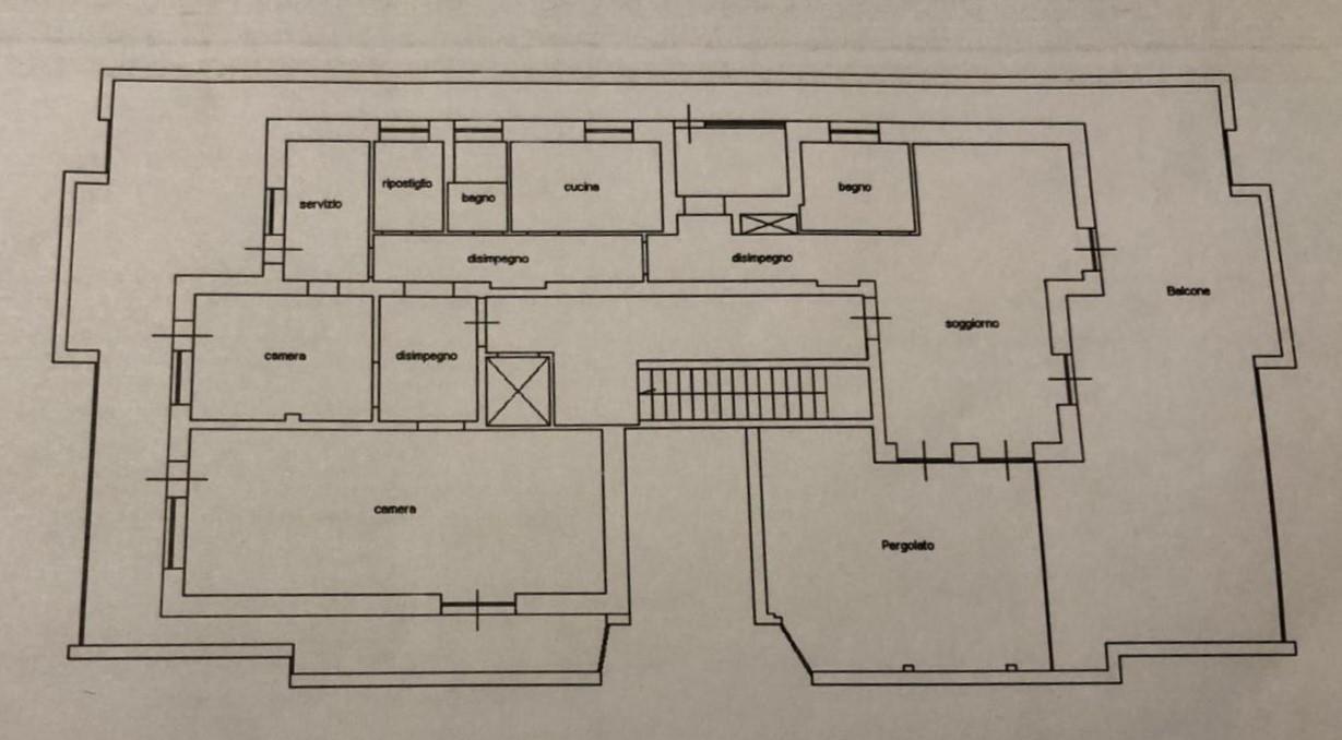
Zona Conca D'Oro a pochi metri della fermata metropolitana più precisamente in Via Val Santerno, proponiamo all'interno di una palazzina misto tinta e cortina con ascensore la vendita di un attico di circa 185 mq commerciali con terrazza perimetrale a livello di circa 150 mq composto da doppio ingresso, ampio salone, cucina abitabile, tre camere, cameretta e due bagni. L'appartamento affaccia interamente sulla terrazza, con quadrupla esposizione nord sud est ovest; è composto esclusivamente da tramezzature pertanto si presta ad innumerevoli soluzioni di redistribuzioni degli spazzi interni. L'unità immobiliare volendo è frazionabile in due o più unità.
