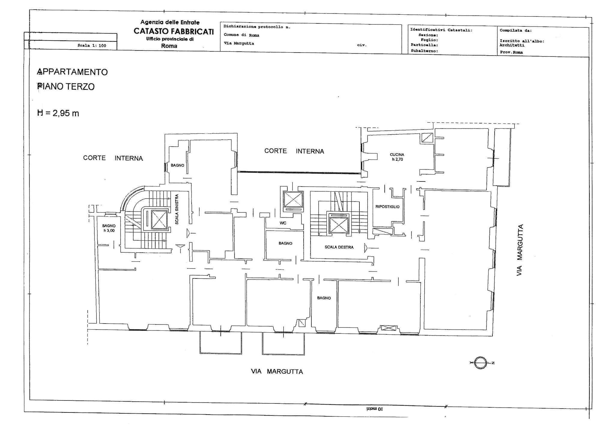
Proponiamo in vendita, nella splendida cornice del centro storico esattamente in Via Margutta nel palazzo dove visse il regista Federico Fellini, un prestigioso appartamento di 335 mq circa posto al terzo piano. L'appartamento, unico al piano con tre ingressi ed un quarto di servizio, è così composto: ampio ingresso, salone triplo, con splendido ed arioso affaccio su vicolo Margutta, studio con camino, sala da pranzo con balcone, possibilità bagno ospiti, ampia cucina con zona office, lavanderia e spaziosa zona di servizio con camera e bagno. La zona notte ha una grande camera padronale, con caratteristico affaccio su via Margutta, ha il bagno en suite e possibile ampia zona cabina armadio, le altre due spaziose camere da letto hanno due balconi anch'esse con affaccio su Via Margutta, ed annessi due bagni. Il palazzo, uno dei più signorili di Via Margutta, ha servizio di portineria tutto il giorno, ha doppia scala principale con doppio ascensore oltre all'ascensore di servizio. L'ampia metratura, gli affacci sulla cornice unica di Via Margutta, la luminosità e l'estesa vista rendono questo appartamento unico ed ideale per chi voglia vivere ogni giorno le caratteristiche del centro storico nell'assoluta tranquillità ed essenza dell'affascinante Via Margutta.
