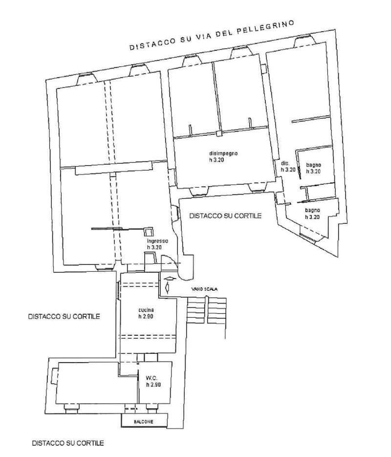
Proponiamo in vendita un bellissimo e rifinito appartamento posto al terzo piano di circa 225 mq all'interno di una palazzina d’epoca con servizio di ascensore. L'immobile è composto da: ingresso, ampio salotto, sala da pranzo, studio, camera da letto padronale con cabina armadio e bagno padronale , due camere da letto e servizio, ampia cucina con office, balcone e camera con bagno di servizio.
L’appartamento ha avuto una ristrutturazione che ha valorizzato il fascino delle caratteristiche originali della proprietà utilizzando finiture di grande pregio; tripla esposizione con affacci sui tipici tetti del centro storico.
Completa la proprietà un posto auto nel garage custodito in zona adiacente.
