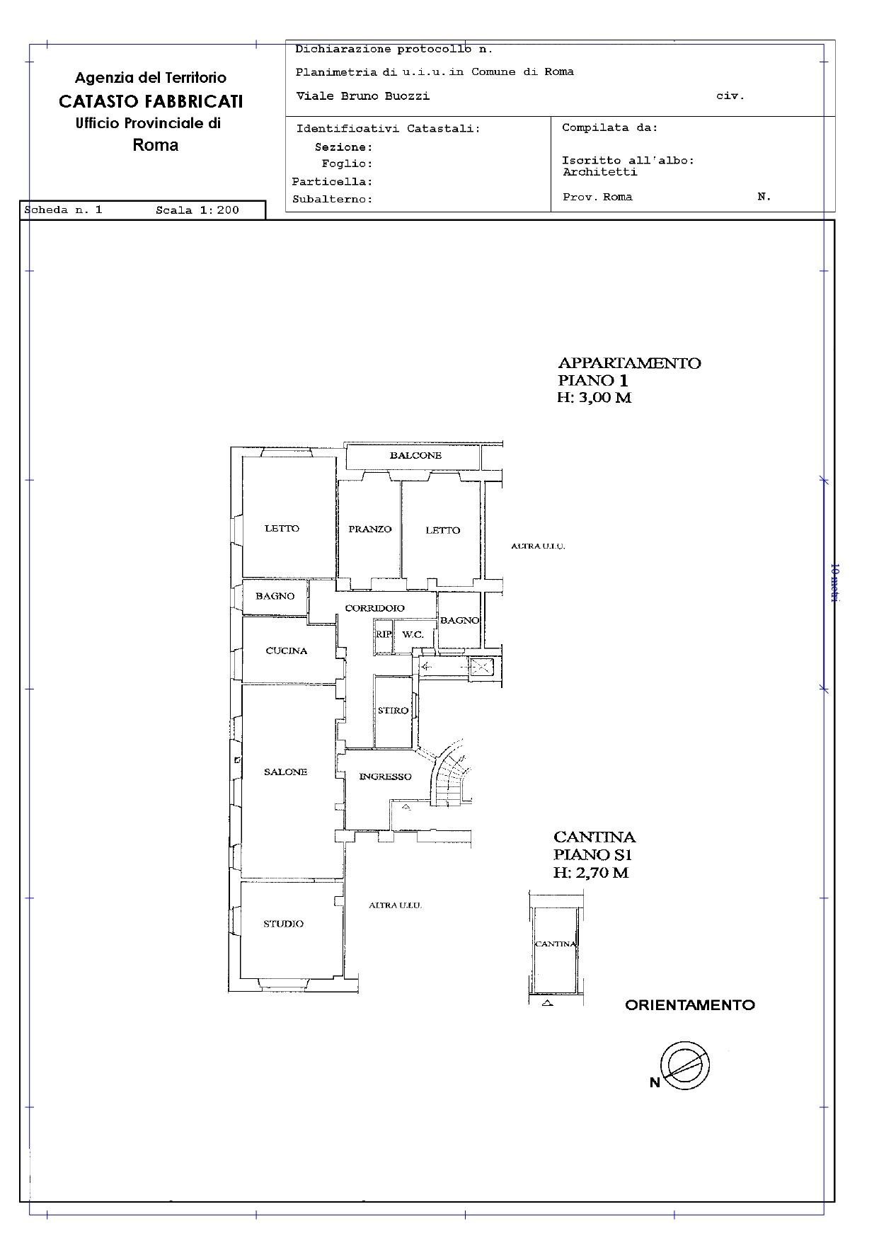
PARIOLI - Viale Bruno Buozzi proponiamo la vendita all'interno di un elegante stabile degli anni '50 con servizio di portineria ed ascensore di un appartamento sito al primo piano alto di circa 233 mq composto da ampio ingresso, salone doppio con camino, caratterizzato da grandi finestre che illuminano l'ambiente, sala da pranzo, spaziosa cucina abitabile, camera e bagno di servizio; camera padronale con bagno en suite, altre due camere da letto con accesso ad un balcone vivibile e bagno. Tutte le camere sono spaziose e luminose, con pavimenti in parquet e grandi finestre che offrono una vista molto aperta. L'immobile gode di un'ottima esposizione e si presenta da ristrutturare. Completa la proprietà una comoda cantina. Possibilità di acquisto box all'interno dello stabile. In sintesi, l'appartamento in vendita a Viale Bruno Buozzi a Roma rappresenta un'ottima soluzione abitativa per chi cerca spazi ampi e luminosi, in una zona residenziale e servita.
